Wohnung Maisonettewohnung im Ostseebad Wustrow zur Miete

Objektbeschreibung

Auf einem zusammenhängenden, ca. 2560 m² großen Grundstück, mitten im Ostseebad Wustrow, befindet sich die Wohnanlage"Middenmang", die sich harmonisch in die gewachsene Struktur des Umfeldes einfügt.
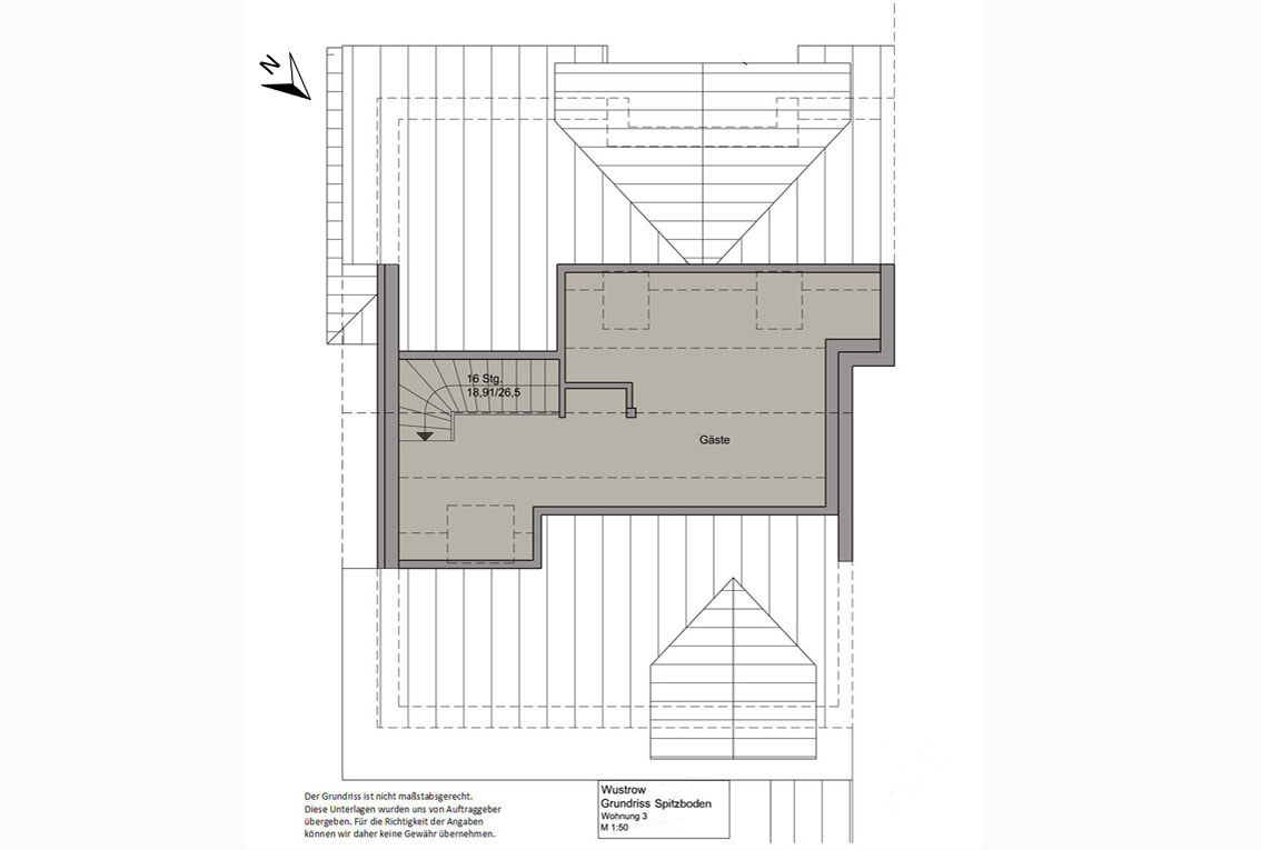
Hier im Obergeschoß befindet sich diese geräumige 3 Zimmer - Maisonettewohnung mit einer Wohnfläche von ca. 85 m². Die erste Etage gliedert sich auf in eine Garderobe, ein Schlafzimmer mit Einbauschrank , ein Duschbad und in einen offenen Wohn-/Küchenbereich mit sich anschließendem Balkon in Süd/Westausrichtung. Über die weiße Holztreppe aus Buche erreicht man den Spitzboden  in dem sich das zweite Schlafzimmer und ein weiterer Abstellraum befindet. Der durchdachte Grundriss, sowie die verwendeten Materialien erleichtern die Ideenfindung der Möblierung für einen Zweitwohnsitz.

- Fenster mit Rollladen und Gaze
- Fußbodenheizung, Heizkörper
- Fußboden mit Desingbelag im Wohnbereich und Fliesen im Bad
- Bad mit Doppelwaschtisch inkl. Unterschrank, ebenerdige Dusche, Handtuchheizkörper,
  Waschmaschinenanschluß, Spiegel
- neue Einbauküche vorhanden inkl. Kühl-/Gefrierkombination, Ablufthaube, Geschirrspüler, Backofen, Ceranfeld
- im SZ Einbauschrank mit Spiegelfäche
- dezentrale Lüftungsanlage in der Wohnung vorhanden
- 1  Abstellraum für Fahrräder und PKW- Stellplatz - zur Eigennutzung

PROVISIONSFREI

 

keine Haustiere erlaubt

Energie

Energieausweis: Energiebedarfsausweis

Wesentliche Energieträger: Gas

Endenergiebedarf: 42 kWh(m²*a)

Energieeffizienzklasse: A

Ausstellungsdatum: 18.01.2017

Gültig bis: 17.01.2027

Baujahr: 2019

Heizungsart: Fußbodenheizung

Wesentliche Energieträger: Gas

3 Zimmer

85 m² Wohnfläche

1 Badezimmer

1 Stellplatz/-plätze